
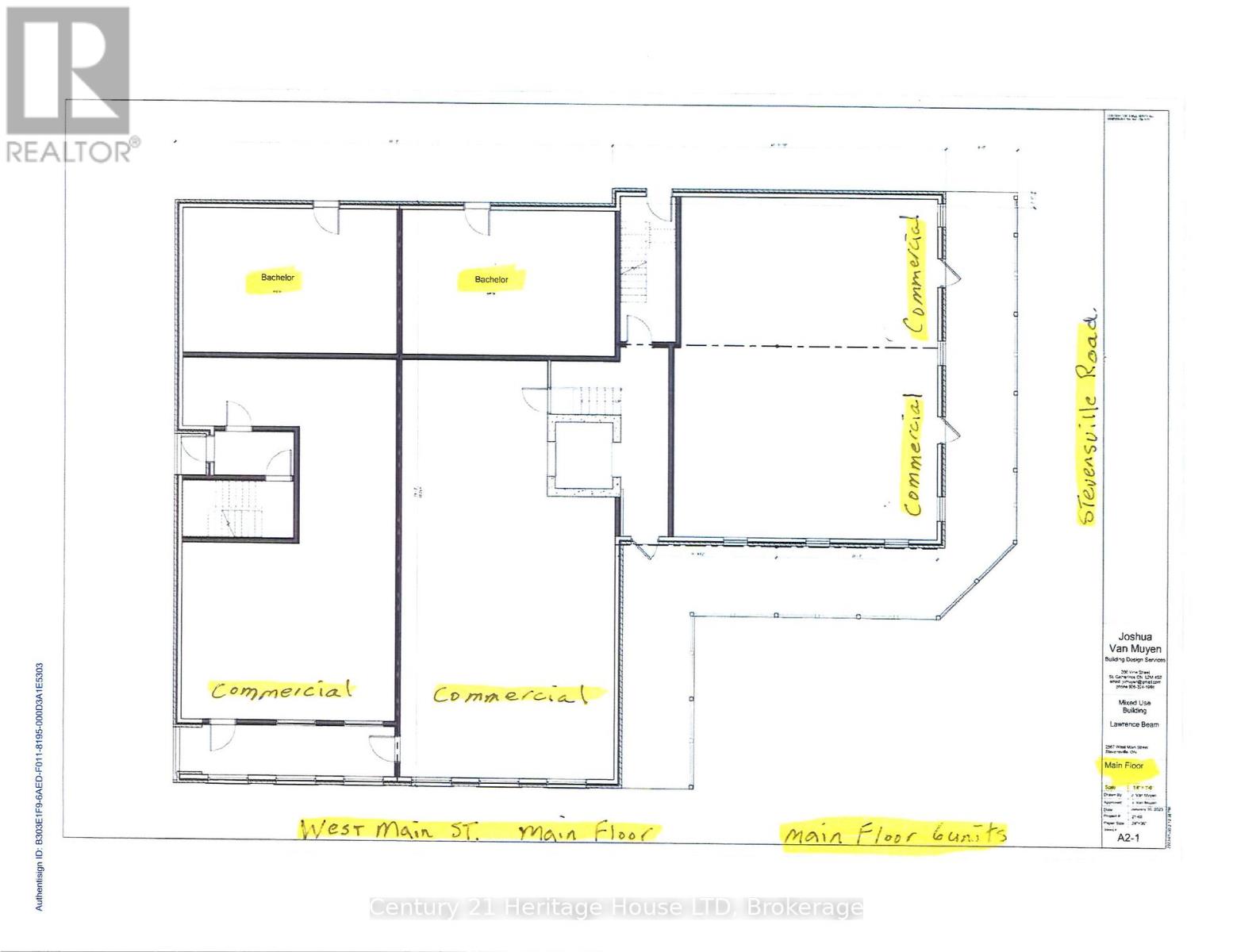
Great Investment opportunity! Golden opportunity to bring back the nostalgia of once was at this prime corner property in the quaint village of Stevensville. 18 units in total, combination of 4 commercial and 14 residential units to be built. SITE PLAN APPROVED. GRANTS AVAILABLE FROM THE MUNICIPALITY. Buyer responsible for own due diligence. (id:15265)
| MLS® Number | X12680674 |
| Property Type | Business |
| Community Name | 328 - Stevensville |
| Acreage | No |
| SizeFrontage | 118 Ft ,9 In |
| SizeIrregular | 118.8 Ft |
| SizeTotalText | 118.8 Ft |
| ZoningDescription | Cmu5 |
| CoolingType | Fully Air Conditioned |
| HeatingFuel | Natural Gas |
| HeatingType | Forced Air |
| UtilityWater | Municipal Water |
"*" indicates required fields